36 Boyd Avenue,Honey Park,Dun Laoghaire,Co. Dublin Dun Laoghaire Dublin City

€995,000

Bedrooms
5

Bathrooms
4

Size
212 m^2

Ber Rating

  • A energy rating
  • 4 bedrooms plus 2 attic rooms
  • Utility room
  • Designated parking
  • Low maintenance rear garden
  • Landscaped communal grounds
  • GFCH

Introducing 36 Boyd Avenue, located in the desirable Honey Park Development in Dun Laoghaire. Available exclusively through Lynam Auctioneers, this beautiful, Cosgrave built home extends to approximately 212 square metres and offers superbly proportioned accommodation and an A energy rating.

To the front of the property are perfectly manicured hedging and flower beds as well as a designated car parking space. No 36 is a mid terrace home with high quality finishes throughout. Accommodation comprises a spacious and welcoming entrance hall leading to a light filled living room and a modern and open plan kitchen. Off the kitchen, there is a most useful utility room. The kitchen itself is ideal for a growing family and smartly finished with a neutral colour palette. Ground floor accommodation is completed by a guest WC.

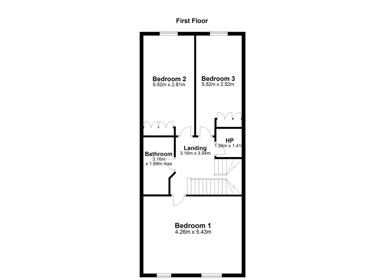
On the first floor there are 3 spacious bedrooms and an elegantly designed family bathroom. On the second floor there are an additional 2 bedrooms, an attic room/office and a shower room. The master bedroom boasts an en suite bathroom and a walk in wardrobe.

The Honeypark Development is conveniently located near the villages of Dun Laoghaire, Monkstown, Glasthule and Gleneagery. The area is well serviced by public transport as well as offering easy access to the DART, M50 and N11 roadworks.

Early viewing recommended

Contact Rachel Mulvey 01 2965374